Home
About Us
Our Projects
Completed Projects
Bengaluru
Chennai
Hyderabad
Kochi
Guntur
Ongoing Projects
Bengaluru
Apartments
Villas
Hyderabad
Chennai
Kochi
Ranchi
Interiors
News & Events
Investors
Contact Us
Enquire Now
2 BHK, 3 BHK & Penthouses
Luxury Apartment in Ranchi
+91 97714 54762 / 97714 00899
Sector-1, Block-R15, Flat No-B, NGHC Khelgaon, Hotwar, Jharkhand, Ranchi
nghckhelgaon@nccurban.com, inforanchi@nccurban.com
Download Brochure
3347 - 4152 Sq ft.
Overview
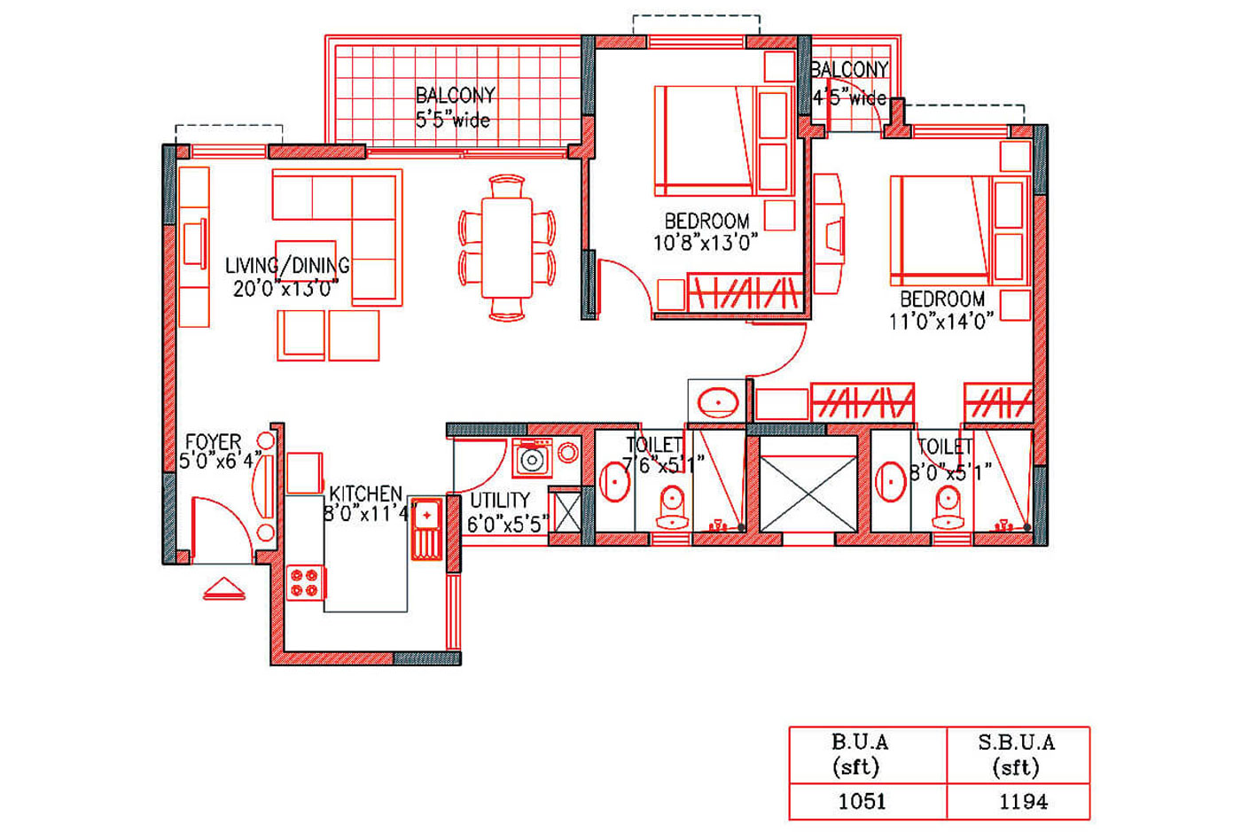
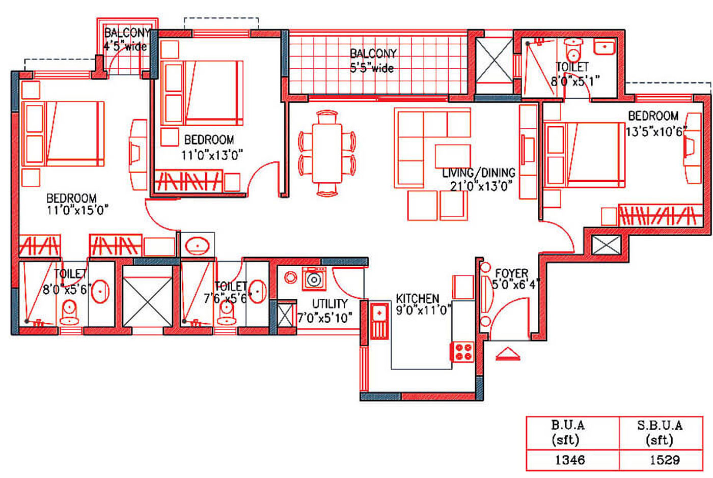
Floor Plans
1 / 14
2 / 14
3 / 14
4 / 14
5 / 14
6 / 14
7 / 14
8 / 14
❮
❯
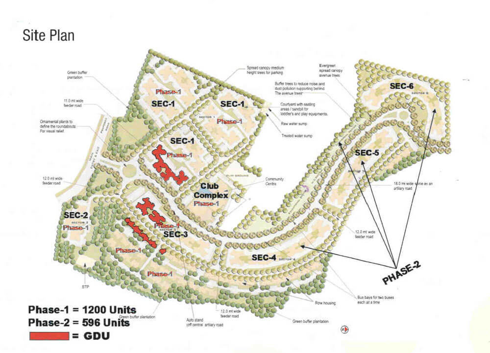
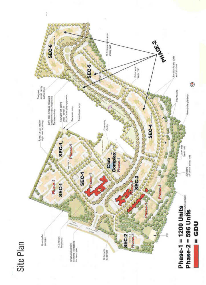
Layout Plan
Specifications
Structure & Foundation
Seismic zone II compliant RCC Foundation & Framed structure.
Grade of Reinforcement & concrete as per approved drawings.
Painting
Oil bound distemper over smooth Putty finish.
Exterior : Acrylic Emulsion or equivalent paint.
Flooring & Cladding
Elegant Stilt floor entrance lobby in vitrified tiles flooring.
Vitrified Tiles flooring for living, dining area.
Vitrified Tiles flooring in other areas.
Ceramic Tiles flooring in adjacent terrace areas.
Cladding in Vitrified Tiles on the lift sidewall at Stilt Floor level.
Toilet : Fittings & Accessories
Concealed PPR/GI Hot and Cold water supply pipe lines.
Ceramic Tiles flooring.
Glazed Tiles dado in toilets up to 7 feet height.
Health faucet will be provided for all toilets.
Provision of geyser electrical point for all toilets.
Doors & Windows
Entrance Door frame in Teak wood. All other door frames in Sal wood.
Teak Veneered Flush shutter/moulded panel door shutter with melamine polish from both sides will be provided as main door of the Apartment.
Flush door shutters for bedrooms/toilets with Enamel Paint from both sides.
Brass hardware for main doors, Aluminum Powder Coated Hardware for all other doors.
The balcony door in the living room will be provided with Aluminum Powder coated sliding 3 track doors with mosquito mesh.
Aluminum Powder coated 3 track sliding windows with mosquito mesh with plain sheet glass shall be provided.
Kitchen
'L' shape Granite kitchen platform with stainless steel sink.
Lift
One Passenger and One Service Elevator/Lift will be provided per Tower.
Electrical
One TV point in the living room and all bedrooms.
Fire resistant electrical wiring.
Provision of A/C Point for All Bedroom.
Each flat will be provided with 4 KW power with energy mater and 5 KW power for the pent houses & row houses.
Common Amenities
Beautifully landscaped Gardens.
Common Servant/Driver’s Toilets at Stilt level.
Garbage collection at individual floors, blocks and sector respectively.
Separate sewage Treatment Plant for the project.
General
Back up generator for common area lighting and one lift of each block.
Provisions for: Washing machine Point, EPABX System
Cable TV
An exclusive network of Cable TV will be provided (users to pay charges).
Security Systems (User to pay charges)
Round the clock security as per prevalent practice and requirement.
Trained security personnel will do patrolling of the Games Village.
Club House
Large hall equipped health club & gymnasium.
Shuttle court.
Multi purpose hall.
Meditation/Yoga hall
Indoor game room.
TV Room / Home theater space.
Library.
Billiards hall.
Table Tennis hall.
Swimming pool with toddler pool.
Lounging / spill over terraces.
Other amenities for services.
Google Map
Location Map
NCC Urban Khelgaon - Video Walkthrough
Project - Current Status